Call us

(613) 804-9999

Free estimation

Click here

LOT 3 1 FINCH STREET

North Stormont, Ontario K0C1K0

$574,900 for sale



MLS®:
X12527666
Contract Days:
121
Community:
Ownership:
Freehold
Property Type:
Residential House , Detached
Total Size:
50 x 115 FT
Built Date:
Parking:
6
Bedrooms:
3+
Bathrooms:
2
Interior Features

Construction Style:
Detached
Total Stories:
1
Total Bedrooms:
3
Bedrooms Above Ground:
3
Bedrooms Below Ground:
Total Bathrooms:
2
Whole Bathrooms:
2
Half Bathrooms:
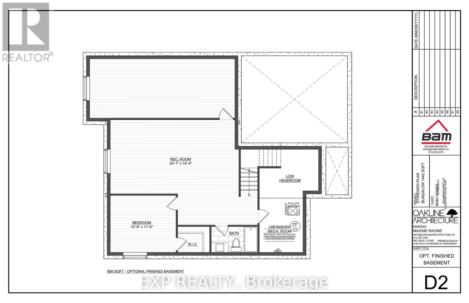
Basement Type:
Full (Unfinished)
Basement Development:
Unfinished
Appliances:
Exterior Features

Built Date:
Exterior Finish:
Stone, Wood
Foundation Type:
Poured Concrete
Utitilies

Heating Type:
Forced air
Heating Fuel:
Natural gas
Cooling Type:
None, Air exchanger
Utility Water:
Municipal water
Sewer:
Sanitary sewer
Total Fireplaces:
Type
Level
Size
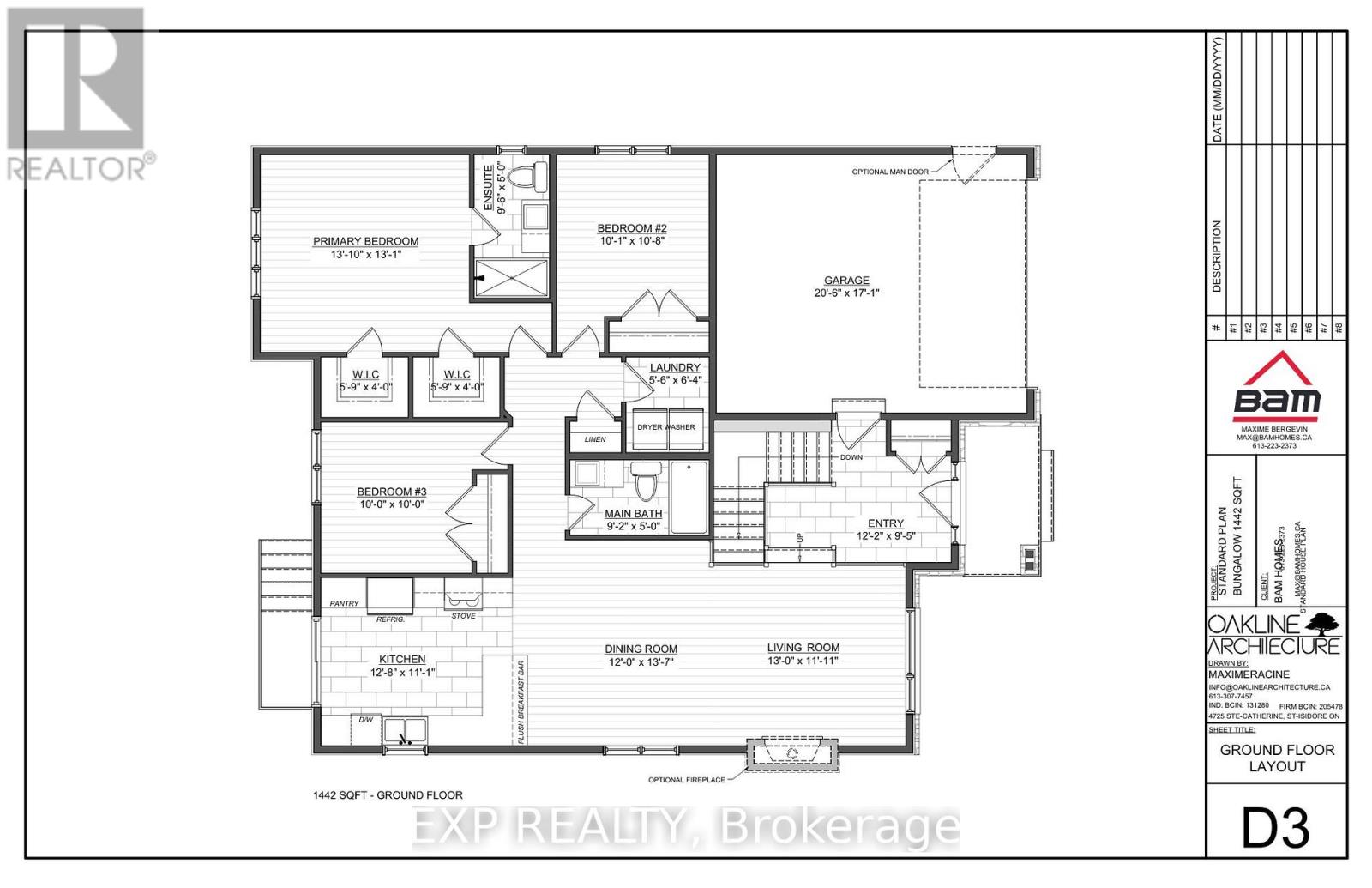
Living room
Main level
3.96 m x 3.37 m
Dining room
Main level
3.6 m x 4.17 m
Kitchen
Main level
3.9 m x 3.38 m
Primary Bedroom
Main level
3.99 m x 3.99 m
Bedroom 2
Main level
3.07 m x 3.29 m
Bedroom 3
Main level
3.04 m x 3.04 m

Note

NEW! NEW! NEW! A modern 3 bed 2 bath, bungalow with a garage spacious enough to hold 2 large cars! Be the very first to live in this new build right in the heart of Finch! Live the small town life with the modern luxuries, a home built with only the finest of craftsmanship. Enjoy the bike trails, arena, and walking trails, surrounding yourself with beautiful nature. Customizable finishes and layouts available - choose your preferred flooring, cabinetry, countertops, and more to create a home that truly reflects your style. (id:19004)

Disclaimer



This REALTOR.ca listing content is owned and licensed by REALTOR® members of The Canadian Real Estate Association.