Call us

(613) 804-9999

Free estimation

Click here

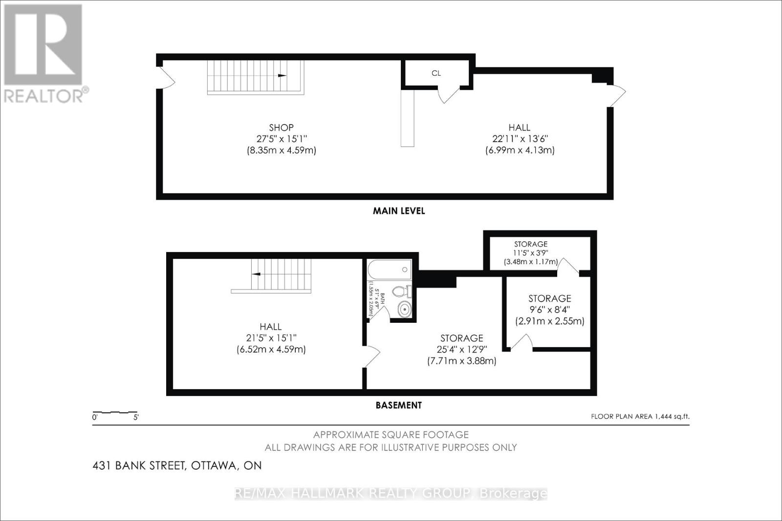
431 BANK STREET

Ottawa, Ontario K2P1Y7

$699,000 for sale



MLS®:
X12616816
Contract Days:
144
Community:
Ownership:
Property Type:
MS1 H(30) Offices
Total Size:
13.54 x 65.94 FT
Built Date:
Parking:
Bedrooms:
+
Bathrooms:
1
Interior Features

Construction Style:
Total Stories:
Total Bedrooms:
Bedrooms Above Ground:
Bedrooms Below Ground:
Total Bathrooms:
1
Whole Bathrooms:
1
Half Bathrooms:
Basement Type:
Basement Development:
Appliances:
Exterior Features

Built Date:
Exterior Finish:
Foundation Type:
Utitilies

Heating Type:
Forced air
Heating Fuel:
Natural gas
Cooling Type:
Fully air conditioned
Utility Water:
Municipal water
Sewer:
Total Fireplaces:
Type
Level
Size

Note

Well-positioned main street commercial property suited to owner-occupiers and investment buyers alike. Offered vacant on iconic Bank Street, this 1,500 sq. ft. street-level commercial space presents a rare opportunity to secure frontage along one of Ottawa's most established urban corridors. The efficient two-level layout supports strong main-floor visibility while providing functional lower-level space for storage, production, private services, or back-of-house operations, allowing flexibility for direct occupancy or strategic tenant placement. Zoned MS1 H(30), the property permits a wide range of commercial uses, enhancing long-term adaptability and income potential. Surrounded by established retailers, restaurants, and growing residential density, 431 Bank Street benefits from steady pedestrian activity and enduring demand for well-located main street space, supporting curated occupancy, stable income generation, or long-term appreciation within Ottawa's core urban fabric. ADDITIONAL DETAILS FOUND IN "MORE INFORMATION" LINK BELOW. (id:19004)

Disclaimer



This REALTOR.ca listing content is owned and licensed by REALTOR® members of The Canadian Real Estate Association.