Call us

(613) 804-9999

Free estimation

Click here

3489 GALETTA SIDE ROAD

Ottawa, Ontario K7S3G7

$1,379,900 for sale



MLS®:
X12818390
Contract Days:
1
Community:
Ownership:
Property Type:
AG
Total Size:
750 x 589 FT|10 - 24.99 acres
Built Date:
Parking:
8
Bedrooms:
5+
Bathrooms:
4
Interior Features

Construction Style:
Total Stories:
3
Total Bedrooms:
5
Bedrooms Above Ground:
5
Bedrooms Below Ground:
Total Bathrooms:
4
Whole Bathrooms:
3
Half Bathrooms:
1
Basement Type:
Full (Unfinished)
Basement Development:
Unfinished
Appliances:
Central Vacuum, Water Heater - Tankless, Water Treatment, Dishwasher, Dryer, Hood Fan, Hot Water Instant, Stove, Wall Mounted TV, Washer, Refrigerator
Exterior Features

Built Date:
Exterior Finish:
Stone
Foundation Type:
Stone
Utitilies

Heating Type:
Baseboard heaters, Forced air, Not known
Heating Fuel:
Propane
Cooling Type:
Central air conditioning
Utility Water:
Drilled Well
Sewer:
Septic System
Total Fireplaces:
Type
Level
Size
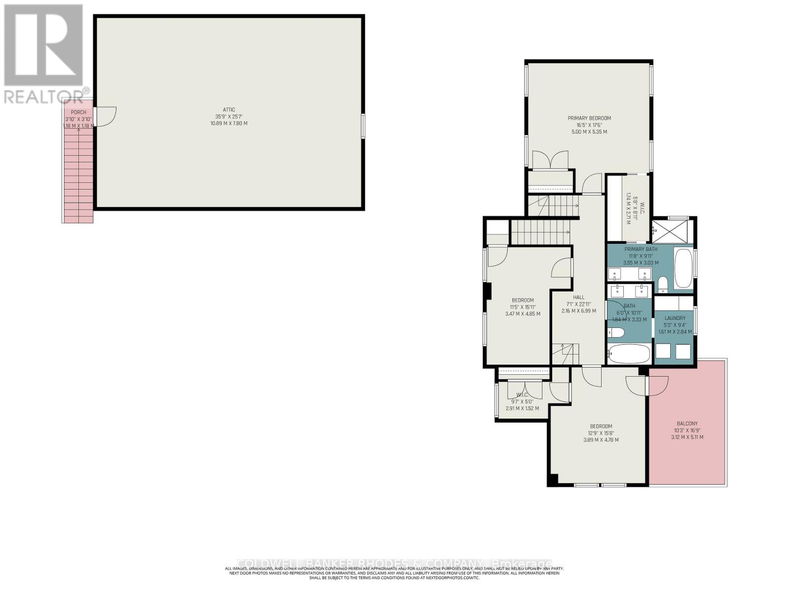
Laundry room
Second level
1.61 m x 2.84 m
Primary Bedroom
Second level
5 m x 5.35 m
Bedroom
Second level
3.47 m x 4.85 m
Bedroom
Second level
3.89 m x 4.78 m
Loft
Third level
3.84 m x 6.9 m
Bedroom
Third level
3.59 m x 4.51 m
Recreational, Games room
Third level
4.59 m x 5.35 m
Foyer
Main level
3.51 m x 3.44 m
Kitchen
Main level
5.98 m x 6.1 m
Pantry
Main level
2.07 m x 1.76 m
Family room
Main level
8.05 m x 4.08 m
Living room
Main level
4.85 m x 6.13 m
Dining room
Main level
3.66 m x 4.69 m
Bedroom
Main level
3.89 m x 4.78 m

Note

A once in a lifetime opportunity to steward this historic property into the next generation! Worthy of an interior design magazine, this circa 1897 limestone farm home has been extensively modernized & meticulously restored by local master craftsman, Maple Leaf Custom Homes. This incredible property is situated on almost 20 acres & lends itself to a variety of uses in its agriculture (AG) zoning. It is currently operated as a grand residence with an equestrian hobby farm. The main house features 5 bedrooms & 4 bathrooms over 3 storeys retaining the original refinished hardwood flooring and soaring ceilings. The main level features a spacious combo living/dining room with Napolean gas stove. A showstopping "country" kitchen includes marble countertops w/a central island, huge farm style sink, 8 burner propane gas stove w/custom hood fan built-in dishwasher and separate pantry. The family room features a wet bar and wine fridge with access to the back patio. Large main floor bedroom could be additional family room or well suited for a professional home office with adjacent direct entrance. Fully renovated three piece washroom also on the main level. A modern addition adds a foyer/mudroom with access to the attached double garage and main floor gym. Two staircases (front and back) lead to the 2nd level. Spacious primary bedroom w/walk-in closet & 5 piece luxury marble ensuite. 2nd floor laundry & additional full 5 piece washroom. Large bedrooms on the 2nd level and access to balcony through 4th bedroom. The 3rd floor features open staircase/loft space used as an office with sloped ceilings, a 5th bedroom, a play/rec room and a half bathroom. There is an unfinished attic space above the attached garage - perfect for an artisan workshop or art studio. The grounds include a stable with three horse stalls, a tac room, a full workshop, water and power. An additional barn is used for storage and horses graze in the paddocks. (id:19004)

Disclaimer



This REALTOR.ca listing content is owned and licensed by REALTOR® members of The Canadian Real Estate Association.