Call us

(613) 804-9999

Free estimation

Click here

1203 MONTBLANC CRESCENT

Russell, Ontario K0A1W0

$644,900 for sale



MLS®:
X12899346
Contract Days:
1
Community:
Ownership:
Freehold
Property Type:
Residential House , Detached
Total Size:
34 x 110 FT ; 0
Built Date:
Parking:
4
Bedrooms:
3+
Bathrooms:
2
Interior Features

Construction Style:
Detached
Total Stories:
2
Total Bedrooms:
3
Bedrooms Above Ground:
3
Bedrooms Below Ground:
Total Bathrooms:
2
Whole Bathrooms:
1
Half Bathrooms:
1
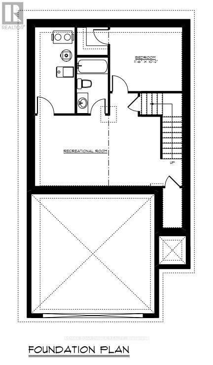
Basement Type:
Full (Unfinished)
Basement Development:
Unfinished
Appliances:
Hood Fan
Exterior Features

Built Date:
Exterior Finish:
Wood, Stone
Foundation Type:
Concrete
Utitilies

Heating Type:
Forced air
Heating Fuel:
Natural gas
Cooling Type:
None, Air exchanger
Utility Water:
Municipal water
Sewer:
Sanitary sewer
Total Fireplaces:
Type
Level
Size
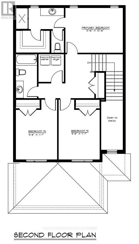
Primary Bedroom
Second level
4.11 m x 3.2 m
Bedroom
Second level
2.94 m x 3.53 m
Bedroom
Second level
2.94 m x 3.53 m
Kitchen
Main level
4.34 m x 2.87 m
Dining room
Main level
3.35 m x 2.92 m
Living room
Main level
4.29 m x 3.35 m

Note

Foxglove Model, single family home with attached double car garage at ta reasonable price! This home features an open concept main level filled with natural light, exquisite kitchen with walk-in pantry and large center island. The second level is just as beautiful with its 3 generously sized bedrooms, modern family washroom, second floor laundry facility and to complete a massive 3piece master Ensuite with large integrated walk-in closet. The basement is unspoiled and awaits your final touches! This home is not built. Construction for August 2026. Possibility of having the basement completed for an extra $32,500+tax. *Please note that the pictures are from the same Model but from a different home with some added upgrades.* (id:19004)

Disclaimer



This REALTOR.ca listing content is owned and licensed by REALTOR® members of The Canadian Real Estate Association.