Call us

(613) 804-9999

Free estimation

Click here

1706 COUNTY 18 ROAD

North Grenville, Ontario K0G1S0

$900,000 for sale



MLS®:
X12991898
Contract Days:
0
Community:
Ownership:
Freehold
Property Type:
House , Detached
Total Size:
131.3 x 447.9 FT
Built Date:
Parking:
5
Bedrooms:
3+
Bathrooms:
3
Interior Features

Construction Style:
Detached
Total Stories:
1
Total Bedrooms:
3
Bedrooms Above Ground:
3
Bedrooms Below Ground:
Total Bathrooms:
3
Whole Bathrooms:
2
Half Bathrooms:
1
Basement Type:
N/A
Basement Development:
Appliances:
Garage door opener remote(s)
Exterior Features

Built Date:
Exterior Finish:
Vinyl siding
Foundation Type:
Poured Concrete
Utitilies

Heating Type:
Forced air
Heating Fuel:
Propane
Cooling Type:
Central air conditioning, Air exchanger
Utility Water:
Drilled Well
Sewer:
Septic System
Total Fireplaces:
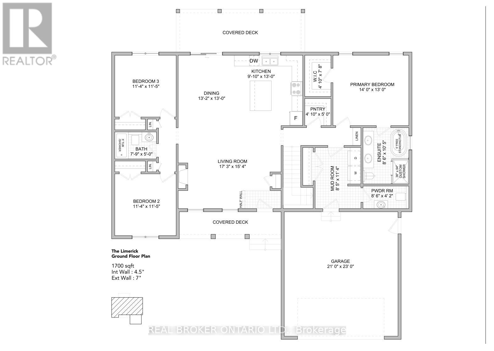
Type
Level
Size
Primary Bedroom
Main level
4.27 m x 3.96 m
Pantry
Main level
1.47 m x 1.52 m
Bedroom 2
Main level
3.45 m x 3.48 m
Bedroom 3
Main level
3.45 m x 3.48 m
Living room
Main level
5.26 m x 4.67 m
Dining room
Main level
4.01 m x 3.96 m
Kitchen
Main level
3 m x 3.96 m
Bathroom
Main level
2.36 m x 1.52 m
Bathroom
Main level
2.59 m x 3.18 m
Mud room
Main level
2.57 m x 3.45 m

Note

Welcome to your dream waterfront bungalow by ArchStone Homes, perfectly positioned in the heart of North Grenville. This stunning home opportunity offers modern design, quality craftsmanship, and peaceful living along Kemptville Creek. Situated on a spacious lot with direct waterfront access, this thoughtfully designed 3-bedroom bungalow features approximately 1,700 sq ft of finished living space with a bright, open-concept layout. The main floor showcases a stylish kitchen flowing seamlessly into the dining and living areas, ideal for both everyday living and entertaining. The primary bedroom retreat offers convenience on the main level, complemented by well-appointed additional bedrooms and bathrooms. Enjoy the added potential of a walk-out basement, perfect for future customization, in-law capability, or extended living space. Quality finishes include forced air propane heating, central air conditioning, and modern exterior details that enhance curb appeal. Step outside to experience tranquil waterfront views, a private rural setting, and ample parking with an attached garage and lane driveway. Located just minutes from amenities while offering the serenity of country living, this home is the perfect blend of comfort and lifestyle. Don't miss your chance to own a brand-new waterfront home in a growing and desirable community. (id:19004)

Disclaimer



This REALTOR.ca listing content is owned and licensed by REALTOR® members of The Canadian Real Estate Association.