联系我们

(613) 804-9999

免费评估

点击这里

967 KATIA STREET

The Nation, Ontario K0A2M0

$674,900 for 出售



MLS®:
X12272214
上市天数:
241
社区:
产权:
类型:
Residential Duplex
占地:
32 x 106 FT
建造日期:
停车位:
3
卧室:
2+2
洗手间:
2
内部特征

建造风格:
楼层:
1
卧室总数:
4
地上卧室:
2
地下卧室:
2
浴室总数:
2
完整浴室:
2
半浴室:
地下室:
Full
地下室装修:
包含电器:
Water Heater
外部特征

建造日期:
外部完成:
Stone, Vinyl siding
地基类型:
Concrete
公共设施

供暖类型:
Forced air
供暖燃料:
Natural gas
制冷类型:
None
饮水供应:
Municipal water
污水处理:
Sanitary sewer
壁炉总数:
类型
楼层
尺寸
Bedroom 2
Main level
0.74 m x 3.3 m
Primary Bedroom
Main level
3.35 m x 4.62 m
Dining room
Main level
3.91 m x 3.05 m
Living room
Main level
3.91 m x 4.47 m
Kitchen
Main level
3.66 m x 3.76 m

备注

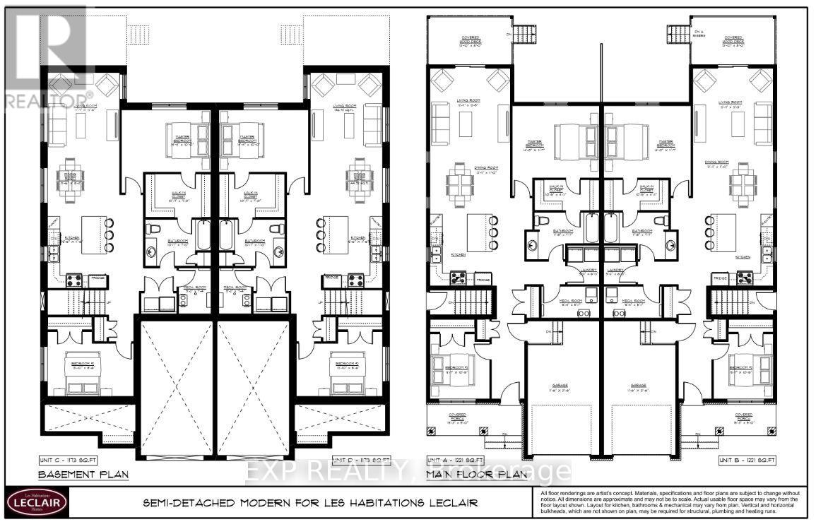
OPEN HOUSE Sunday March 8th 2:00pm - 4:00pm at 63 Chateauguay Street, Embrun. Welcome to the Cecilia, a modern semi-detached bungalow offering 1,151 square feet of thoughtfully designed main-level living. With 2 bedrooms, 1 bathroom, and a 1-car garage, this home is an excellent fit for downsizers, first-time buyers, or anyone seeking easy, single-level living with just the right amount of space. The open-concept layout seamlessly connects the kitchen, dining, and living areas, creating a bright and inviting environment perfect for relaxing evenings or entertaining guests. Clean lines, natural light, and functional design make the Cecilia feel both warm and modern. What sets this semi apart is the fully legal basement unit, featuring 2 additional bedrooms and a 4-piece bathroom ideal for extended family, guests, or generating rental income. This smart addition offers long-term flexibility while maintaining privacy and separation from the main living space. Constructed by Leclair Homes, a trusted family-owned builder known for exceeding Canadian Builders Standards. Specializing in custom homes, two-storeys, bungalows, semi-detached homes, and now offering fully legal secondary dwellings with rental potential in mind, Leclair Homes delivers detail-driven craftsmanship and long-term value in every build. (id:19004)

声明



This REALTOR.ca listing content is owned and licensed by REALTOR® members of The Canadian Real Estate Association.