联系我们

(613) 804-9999

免费评估

点击这里

1887 CANAAN ROAD

Clarence-Rockland, Ontario K4K1K9

$730,000 for 出售



MLS®:
X12536592
上市天数:
158
社区:
产权:
Freehold
类型:
House , Detached
占地:
153 x 150 Acre|1/2 - 1.99 acres
建造日期:
停车位:
5
卧室:
3+
洗手间:
3
内部特征

建造风格:
Detached
楼层:
1
卧室总数:
3
地上卧室:
3
地下卧室:
浴室总数:
3
完整浴室:
2
半浴室:
1
地下室:
Full (Finished)
地下室装修:
Finished
包含电器:
Dishwasher, Dryer, Stove, Washer, Refrigerator
外部特征

建造日期:
外部完成:
Brick
地基类型:
Concrete
公共设施

供暖类型:
Baseboard heaters
供暖燃料:
Electric
制冷类型:
Wall unit
饮水供应:
Drilled Well
污水处理:
Septic System
壁炉总数:
类型
楼层
尺寸
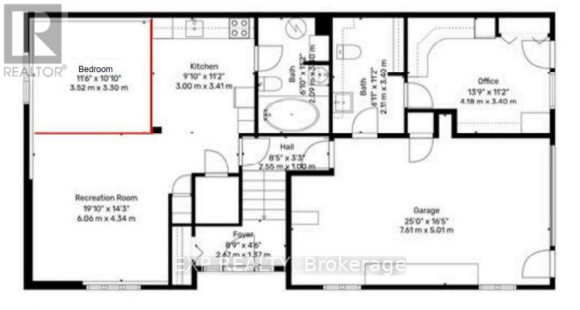
Foyer
In between
2.67 m x 1.37 m
Bedroom 3
Main level
3 m x 3.21 m
Kitchen
Basement
3 m x 3.41 m
Bedroom 2
Main level
3.71 m x 3.21 m
Primary Bedroom
Main level
3.71 m x 4.32 m
Laundry room
Main level
2.09 m x 0.85 m
Kitchen
Main level
5.46 m x 3.4 m
Dining room
Main level
3.45 m x 3.5 m
Living room
Main level
4.87 m x 4.35 m
Dining room
Basement
3.52 m x 3.3 m
Recreational, Games room
Basement
6.06 m x 4.34 m
Office
Basement
4.18 m x 3.4 m

备注

Welcoming 3-Bedroom Hi-Ranch on a Half-Acre Lot. Just a few minutes from Rockland and the 174, this charming property is the ideal place to call home. Set on a spacious half-acre lot, it offers the perfect mix of comfort and practicality for family living. Step inside and you're greeted by a warm and inviting main level with a bright living room, a dining area perfect for family meals, and a kitchen with plenty of cabinets to keep everything organized. The primary bedroom connects to a full 5-piece bathroom, and two additional bedrooms provide space for kids, guests, or even a cozy home office. Downstairs, the large family room is perfect for movie nights or game days, while the second kitchen and additional full bathroom make hosting family or friends a breeze. Part of the garage has been transformed into a comfortable office/study - a perfect spot for work, reading, or creative projects. The remaining 16x26 area still provides plenty of room for parking or storage and could be converted back to a full garage with ease. The outdoor space is made for family fun. Summers can be enjoyed in the above-ground pool, on the large back porch for barbecues, or exploring the yard. At the back of the property, the impressive two-story workshop offers endless possibilities - whether for hobbies, projects, or storing toys both big and small. It features two spacious main-level rooms measuring approximately 20x14 and 26x14, plus a full second story with 220-volt electrical service to power all your tools and equipment. This home is all about making memories cozy inside, fun outside, and conveniently close to everything your family needs. (id:19004)

声明



This REALTOR.ca listing content is owned and licensed by REALTOR® members of The Canadian Real Estate Association.