联系我们

(613) 804-9999

免费评估

点击这里

UNIT 32 - 5620 ROCKDALE ROAD

Ottawa, Ontario K0A3H0

$349,900 for 出售



MLS®:
X12579258
上市天数:
49
社区:
产权:
类型:
Residential Mobile Home
占地:
建造日期:
停车位:
6
卧室:
2+
洗手间:
1
内部特征

建造风格:
楼层:
1
卧室总数:
2
地上卧室:
2
地下卧室:
浴室总数:
1
完整浴室:
1
半浴室:
地下室:
Crawl space
地下室装修:
包含电器:
Water Heater, Dishwasher, Dryer, Hood Fan, Stove, Washer, Refrigerator
外部特征

建造日期:
外部完成:
Vinyl siding
地基类型:
Block
公共设施

供暖类型:
Forced air
供暖燃料:
Propane
制冷类型:
Central air conditioning
饮水供应:
Municipal water
污水处理:
Septic System
壁炉总数:
类型
楼层
尺寸
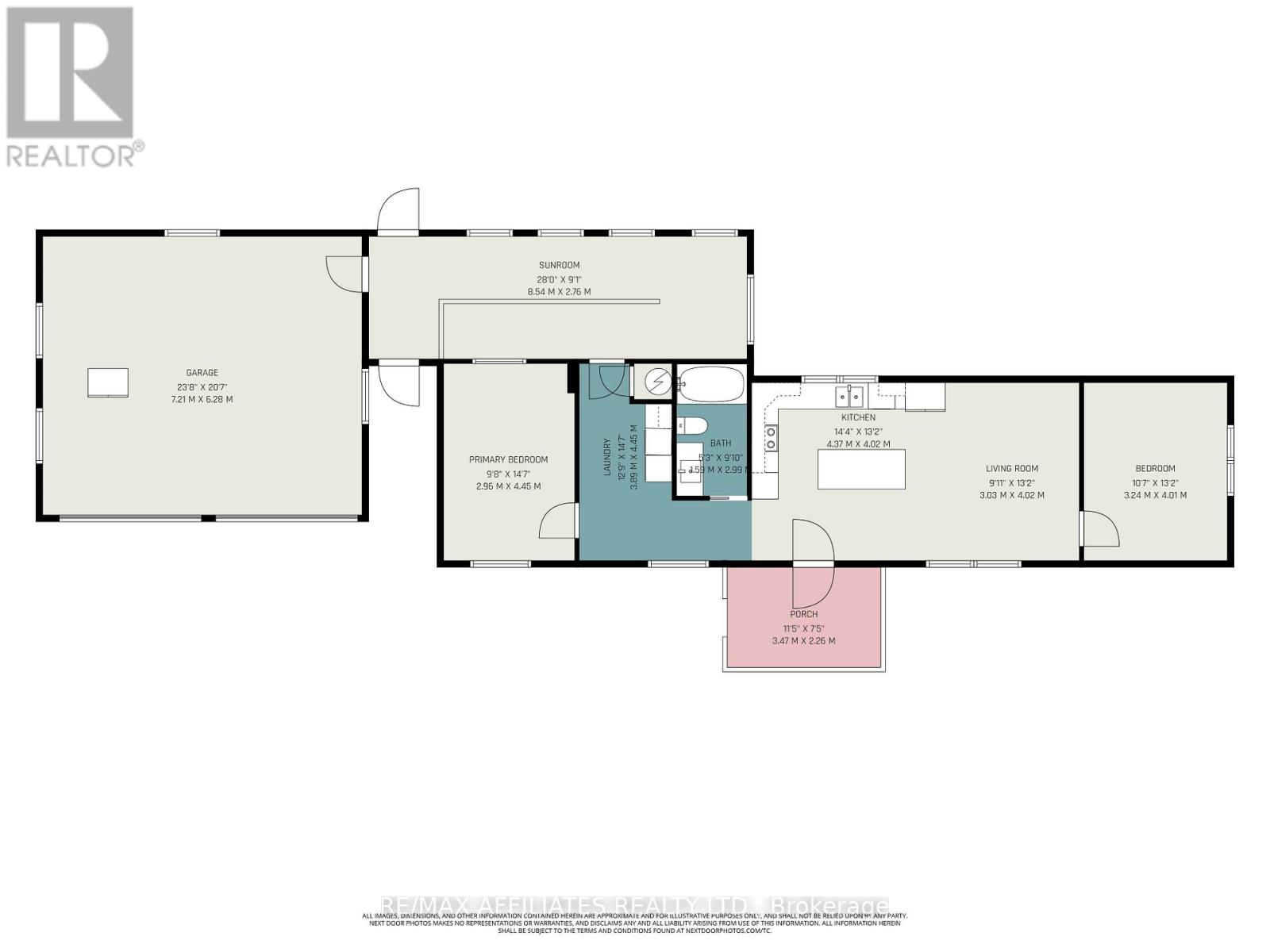
Sunroom
Main level
8.54 m x 2.76 m
Laundry room
Main level
3.89 m x 4.45 m
Bathroom
Main level
1.59 m x 2.99 m
Bedroom 2
Main level
3.24 m x 4.01 m
Primary Bedroom
Main level
2.96 m x 4.45 m
Living room
Main level
3.03 m x 4.02 m
Kitchen
Main level
4.37 m x 4.02 m

备注

New Listing in Vars - Fully Renovated Home with Double Garage! Welcome to this beautifully renovated 2-bedroom home, ideally located in a quiet and peaceful neighbourhood of Vars. This move-in-ready property sits on a spacious lot and offers impressive upgrades throughout, including new flooring, fresh paint, modern light fixtures, and a gorgeous redesigned kitchen featuring butcher-block countertops, two-tone cabinetry, and a large center island. Enjoy an open-concept living area filled with natural light, a stylish 4-piece bathroom with a new vanity and tub/shower combo, and a convenient laundry area with direct access to the backyard. Both bedrooms are generously sized and freshly updated. Outside, you'll find a rare oversized double garage, perfect for vehicles, storage, or hobby space, along with a detached 11.8 x 7.2 ft shed for even more storage. The large driveway offers ample parking, and the treed surroundings provide added privacy. This turnkey home is perfect for downsizers, first-time buyers, or anyone looking for peaceful country living just minutes from town. $643.00/Monthly fees includes land lease, Garbage Removal, road maintenance & taxes. (id:19004)

声明



This REALTOR.ca listing content is owned and licensed by REALTOR® members of The Canadian Real Estate Association.