联系我们

(613) 804-9999

免费评估

点击这里

122 COUNTRY MEADOW DRIVE S

Ottawa, Ontario K0A1L0

$1,275,000 for 出售



MLS®:
X12688636
上市天数:
32
社区:
产权:
Freehold
类型:
House , Detached
占地:
145 x 455.8 FT|2 - 4.99 acres
建造日期:
停车位:
8
卧室:
4+1
洗手间:
4
内部特征

建造风格:
Detached
楼层:
2
卧室总数:
5
地上卧室:
4
地下卧室:
1
浴室总数:
4
完整浴室:
3
半浴室:
1
地下室:
Full (Finished)
地下室装修:
Finished
包含电器:
Hot Tub, Garage door opener remote(s), Dishwasher, Dryer, Furniture, Stove, Washer, Window Coverings, Refrigerator
外部特征

建造日期:
外部完成:
Brick, Stone
地基类型:
Concrete
公共设施

供暖类型:
Forced air
供暖燃料:
Propane
制冷类型:
Central air conditioning
饮水供应:
污水处理:
Septic System
壁炉总数:
2
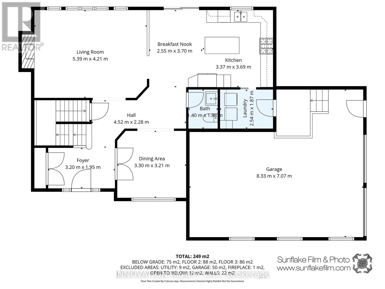
类型
楼层
尺寸
Bathroom
Main level
1.82 m x 1.432 m
Laundry room
Main level
2.59 m x 1.9 m
Eating area
Main level
3.821 m x 2.64 m
Kitchen
Main level
3.72 m x 3.23 m
Living room
Main level
5.683 m x 4.133 m
Dining room
Main level
3.42 m x 3.32 m
Foyer
Main level
3.221 m x 2.942 m
Bathroom
Lower level
2.93 m x 1.285 m
Bedroom
Lower level
5.42 m x 2.6 m
Recreational, Games room
Lower level
8.66 m x 7.128 m
Bathroom
Second level
3.31 m x 2.55 m
Other
Second level
2.78 m x 1.23 m
Primary Bedroom
Second level
4.82 m x 3.6 m
Bathroom
Second level
2.86 m x 1.49 m
Bedroom 4
Second level
3.491 m x 3.318 m
Bedroom 2
Second level
2.97 m x 3.47 m
Bedroom 3
Second level
2.88 m x 3.251 m

备注

Welcome to 122 Country Meadow Drive an exceptional 4 Bedroom, 4 Bath residence nestled in one of Carp's most sought-after estate communities on 2 acres. Perfectly positioned within walking distance to the renowned Greensmere Golf & Country Club, this home offers the perfect blend of privacy, elegance, and modern comfort. Step inside to discover a bright and inviting Dining room that sets the tone for the rest of this stunning home. The main level showcases a sprawling Living room with charming fireplace and an abundance of natural light. The gourmet Kitchen is a chef's dream, featuring granite countertops, a large center island, and premium finishes. Ideal for both everyday living and entertaining. The main floor also includes a convenient Laundry room. On the Upper level you'll find 4 generously sized Bedrooms, including a luxurious Primary Suite complete with a spa-inspired 5-piece Ensuite Bath featuring Roman tub, double vanity and a huge walk-in closet. Plush carpeting throughout the upper level adds warmth and comfort. The fully finished Lower Level is designed for entertainment, boasting a built-in theatre system, an additional Bedroom, and a stylish 3-piece bath perfect for guests or extended family. Outside, your private backyard oasis awaits. Enjoy the lush, mature setting with your own in-ground salt water pool, relaxing hot tub, and picturesque views of your personal forest backdrop the ideal space for all-season enjoyment. Located just minutes from Kanata's high-tech sector, top-rated schools and highway, this remarkable home offers both tranquility and convenience. A true rare gem combining elegance, comfort, and resort-style living in one of Ottawa's most desirable rural communities. Furnace '25, HWT '25, septic '22, HVAC '25. Can be sold furnished! 24 hour Irrevocable on all Offers (id:19004)

声明



This REALTOR.ca listing content is owned and licensed by REALTOR® members of The Canadian Real Estate Association.