联系我们

(613) 804-9999

免费评估

点击这里

800 GEORGE STREET N

Hearst, Ontario P0L1N0

$899,900 for 出售



MLS®:
T12777156
上市天数:
71
社区:
产权:
类型:
Commercial 1
占地:
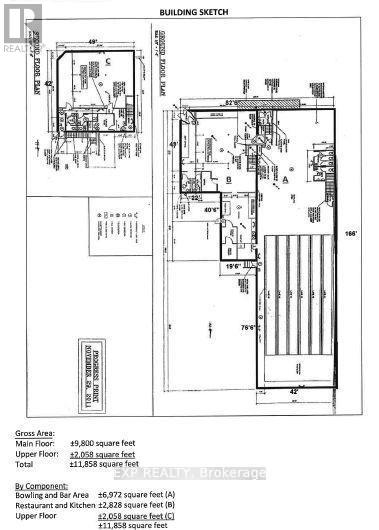
Bldg=43 x 164.66 FT ; Property has 2 PIN#s
建造日期:
停车位:
6
卧室:
+
洗手间:
6
内部特征

建造风格:
楼层:
卧室总数:
地上卧室:
地下卧室:
浴室总数:
6
完整浴室:
6
半浴室:
地下室:
地下室装修:
包含电器:
外部特征

建造日期:
外部完成:
地基类型:
公共设施

供暖类型:
Forced air
供暖燃料:
Natural gas
制冷类型:
Fully air conditioned
饮水供应:
Municipal water
污水处理:
Sanitary sewer
壁炉总数:
类型
楼层
尺寸

备注

Turnkey Multi-Revenue Opportunity in Hearst, Ontario! Grab this rare chance to own a thriving, diversified business at 800 George Street N-a high-visibility corner lot with frontage on three streets for unbeatable exposure in the heart of Hearst. The 11,858 sq. ft. property delivers proven income from three sources under one roof: the well-loved 241 Pizza restaurant, a lively entertainment complex (bowling, pool tables, bar), and a spacious upstairs banquet hall ideal for events and rentals. Well-maintained with strong financials and minimal local competition, it offers real flexibility-keep the 241 Pizza franchise or go independent. This is a solid foundation ready for your ideas: extend hours for nightlife, add a patio, host more events, or expand catering to become the town's go-to spot. At $899,900$, it's a versatile gem with multiple revenue streams and serious growth potential in a supportive Northern Ontario community. Perfect for an energetic owner ready to build on success! (id:19004)

声明



This REALTOR.ca listing content is owned and licensed by REALTOR® members of The Canadian Real Estate Association.